- 居抜き
- スケルトン
- 1F路面店舗
- 美容室・エステ
- 軽飲食
- 飲食
- 重飲食
- 医療・クリニック
- 事務・教室
- 物販・サービス
- テイクアウト
- 風俗可
- 倉庫
- 1フロア1テナント
- 駐車場付き
- レジャービル
- 一棟貸し
- 大通り沿い
- 繁華街
- 商店街
- 住宅街
- オフィス街
- 一等地・駅前
| 物件番号 | 119896 | ||
|---|---|---|---|
| 所在地 | 大阪市福島区野田2丁目 | ||
| 坪数 | 13.44坪 (44.43㎡) | ||
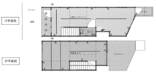
| 募集階 | 1+2階 | ||
| 賃料 | 130,000円[税別] (@9,673)【税込:143,000円】 | ||
| 共益費 | 0円[税別] (@0)【税込:0円】 | ||
| 賃料合計 | 130,000円[税別] (@9,673)【税込:143,000円】 | ||
| 敷金 | 143,000円 | 礼金 | 1ヶ月 |
| 沿線・最寄駅 | 「玉川」駅 徒歩3分 - 千日前線 「JR野田」駅 徒歩6分 - JR環状線 |
||
| 備考 |
軽飲食可/お酒提供の場合、+月11,000円/1F26.49㎡土間仕上げ+2F17.94㎡/火災保険・保証会社:加入要 |
||
| コメント |
【路地裏・軽飲食可】大阪市福島区 野田2丁目 路地裏 隠れ家 軽飲食可 コンバージョン 貸店舗! ※詳細・内覧希望などは、お気軽にお問い合わせください。 |
||
| 掲載更新 | 2026/02※ | ||
※掲載更新月が古いものに関しては、既に募集が終了している可能性が高くなります。予めご了承ください。
最新の空室状況・詳細情報に関しては、お気軽にお問い合わせください。
| カテゴリー | 大阪市福島区 野田2丁目 路地裏 隠れ家 貸店舗 貸しテナント 軽飲食可 | ||
|---|---|---|---|
