- 居抜き
- スケルトン
- 1F路面店舗
- 美容室・エステ
- 軽飲食
- 飲食
- 重飲食
- 医療・クリニック
- 事務・教室
- 物販・サービス
- テイクアウト
- 風俗可
- 倉庫
- 1フロア1テナント
- 駐車場付き
- レジャービル
- 一棟貸し
- 大通り沿い
- 繁華街
- 商店街
- 住宅街
- オフィス街
- 一等地・駅前
| 物件番号 | 119741 | ||
|---|---|---|---|
| 所在地 | 大阪市福島区玉川3丁目 | ||
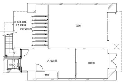
| 坪数 | 12.37坪 (40.89㎡) | ||
| 募集階 | 1階 | ||
| 賃料 | 170,000円[税別] (@13,743)【税込:187,000円】 | ||
| 共益費 | 10,000円[税別] (@808)【税込:11,000円】 | ||
| 賃料合計 | 180,000円[税別] (@14,551)【税込:198,000円】 | ||
| 敷金 | 3ヶ月 | 礼金 | 3ヶ月 |
| 沿線・最寄駅 | 「玉川」駅 徒歩7分 - 千日前線 「阿波座」駅 徒歩10分 - 中央線|千日前線 |
||
| 備考 |
業種相談/重飲食不可/天井高2.5m/スケルトン(コンクリート打ちっぱなし)/短期解約違約金あり/火災保険・保証会社:加入要 |
||
| コメント |
【路面・飲食可・スケルトン】大阪市福島区玉川3丁目 路面 飲食可 スケルトン 貸店舗!新築マンション1F!中央卸売市場すぐの立地! ※詳細・内覧希望などは、お気軽にお問い合わせください。 |
||
| 掲載更新 | 2025/07※ | ||
※掲載更新月が古いものに関しては、既に募集が終了している可能性が高くなります。予めご了承ください。
最新の空室状況・詳細情報に関しては、お気軽にお問い合わせください。
| カテゴリー | 大阪市福島区 玉川3丁目 路面 貸店舗 貸テナント スケルトン 飲食可 | ||
|---|---|---|---|
