- 居抜き
- スケルトン
- 1F路面店舗
- 美容室・エステ
- 軽飲食
- 飲食
- 重飲食
- 医療・クリニック
- 事務・教室
- 物販・サービス
- テイクアウト
- 風俗可
- 倉庫
- 1フロア1テナント
- 駐車場付き
- レジャービル
- 一棟貸し
- 大通り沿い
- 繁華街
- 商店街
- 住宅街
- オフィス街
- 一等地・駅前
| 物件番号 | 77614 | ||
|---|---|---|---|
| 所在地 | 大阪市西区京町堀1丁目 | ||
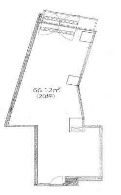
| 坪数 | 20.00坪 (66.12㎡) | ||
| 募集階 | 1階 | ||
| 賃料 | 460,000円[税別] (@23,000)【税込:506,000円】 | ||
| 共益費 | 20,000円[税別] (@1,000)【税込:22,000円】 | ||
| 賃料合計 | 480,000円[税別] (@24,000)【税込:528,000円】 | ||
| 保証金 | 10ヶ月 | 解約引 | スライド |
| 沿線・最寄駅 | 「肥後橋」駅 徒歩3分 - 四つ橋線 「本町」駅 徒歩4分 - 御堂筋線|四つ橋線|中央線 |
||
| 備考 |
業種相談/重飲食不可/ガスなし/スケルトン/敷引き:年数によるスライド/火災保険・保証会社:加入要 |
||
| コメント |
【路面・大通り沿い】大阪市西区京町堀1丁目 路面 大通り沿い 飲食相談可 貸店舗!周辺、オフィス多数の立地!靭公園も近いため、曜日問わず営業可能! ※詳細・内覧希望などは、お気軽にお問い合わせください。 |
||
| 掲載更新 | 2026/03※ | ||
※掲載更新月が古いものに関しては、既に募集が終了している可能性が高くなります。予めご了承ください。
最新の空室状況・詳細情報に関しては、お気軽にお問い合わせください。
| カテゴリー | 大阪市西区 京町堀1丁目 路面 貸店舗 貸テナント 大通り沿い 飲食可 | ||
|---|---|---|---|

