- 居抜き
- スケルトン
- 1F路面店舗
- 美容室・エステ
- 軽飲食
- 飲食
- 重飲食
- 医療・クリニック
- 事務・教室
- 物販・サービス
- テイクアウト
- 風俗可
- 倉庫
- 1フロア1テナント
- 駐車場付き
- レジャービル
- 一棟貸し
- 大通り沿い
- 繁華街
- 商店街
- 住宅街
- オフィス街
- 一等地・駅前
| 物件番号 | 119954 | ||
|---|---|---|---|
| 所在地 | 大阪市北区中津3丁目 | ||
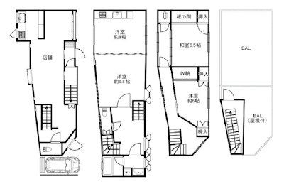
| 坪数 | 41.77坪 (138.08㎡) | ||
| 募集階 | 1-3階 | ||
| 賃料 | 290,000円[税別] (@6,943)【税込:319,000円】 | ||
| 共益費 | 0円[税別] (@0)【税込:0円】 | ||
| 賃料合計 | 290,000円[税別] (@6,943)【税込:319,000円】 | ||
| 敷金 | 0円 | 礼金 | 790,909円 |
| 沿線・最寄駅 | 「中津(阪急線)」駅 徒歩5分 - 阪急神戸線|阪急宝塚線 「中津(御堂筋線)」駅 徒歩7分 - 御堂筋線 |
||
| 備考 |
飲食可(重飲食不可)/居酒屋・ダイニング可/居抜き/1F店舗約9.56坪/2+3F住居仕様/火災保険・保証会社:加入要 |
||
| コメント |
【飲食可・居抜き】大阪市北区 中津3丁目 1-3F一棟貸 1F店舗+2-3F住居!周辺、住宅の多いエリア!+デリバリーにも最適! ※詳細・内覧希望などは、お気軽にお問い合わせください。 |
||
| 掲載更新 | 2026/03※ | ||
※掲載更新月が古いものに関しては、既に募集が終了している可能性が高くなります。予めご了承ください。
最新の空室状況・詳細情報に関しては、お気軽にお問い合わせください。
| カテゴリー | 大阪市北区 中津3丁目 路面 飲食可 居抜き 貸店舗 貸しテナント テナント | ||
|---|---|---|---|

