- 居抜き
- スケルトン
- 1F路面店舗
- 美容室・エステ
- 軽飲食
- 飲食
- 重飲食
- 医療・クリニック
- 事務・教室
- 物販・サービス
- テイクアウト
- 風俗可
- 倉庫
- 1フロア1テナント
- 駐車場付き
- レジャービル
- 一棟貸し
- 大通り沿い
- 繁華街
- 商店街
- 住宅街
- オフィス街
- 一等地・駅前
| 物件番号 | 119852 | ||
|---|---|---|---|
| 所在地 | 大阪市北区堂山町 | ||
| 坪数 | 17.27坪 (57.09㎡) | ||
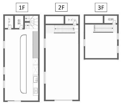
| 募集階 | 1-3階 | ||
| 賃料 | 430,000円[税別] (@24,899)【税込:473,000円】 | ||
| 共益費 | 0円[税別] (@0)【税込:0円】 | ||
| 賃料合計 | 430,000円[税別] (@24,899)【税込:473,000円】 | ||
| 保証金 | 3,000,000円 | 解約引 | 1,500,000円 |
| 沿線・最寄駅 | 「東梅田」駅 徒歩7分 - 谷町線 |
||
| 備考 |
現:居酒屋/居抜き/造作譲渡:希望/1-3F/2026年3月末空き予定(相談)/火災保険・保証会社:加入要 |
||
| コメント |
【路面・飲食可・居抜き】大阪市北区 堂山町 1-3F一棟 居酒屋 居抜き 貸店舗! ※詳細・内覧希望などは、お気軽にお問い合わせください。 |
||
| 掲載更新 | 2025/11※ | ||
※掲載更新月が古いものに関しては、既に募集が終了している可能性が高くなります。予めご了承ください。
最新の空室状況・詳細情報に関しては、お気軽にお問い合わせください。
| カテゴリー | 大阪市北区 堂山町 路面 貸店舗 貸テナント 居抜き 居酒屋 | ||
|---|---|---|---|
