- 居抜き
- スケルトン
- 1F路面店舗
- 美容室・エステ
- 軽飲食
- 飲食
- 重飲食
- 医療・クリニック
- 事務・教室
- 物販・サービス
- テイクアウト
- 風俗可
- 倉庫
- 1フロア1テナント
- 駐車場付き
- レジャービル
- 一棟貸し
- 大通り沿い
- 繁華街
- 商店街
- 住宅街
- オフィス街
- 一等地・駅前
| 物件番号 | 119694 | ||
|---|---|---|---|
| 所在地 | 大阪市西区新町2丁目 | ||
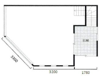
| 坪数 | 7.26坪 (24.00㎡) | ||
| 募集階 | 1階 | ||
| 賃料 | 120,000円[税別] (@16,529)【税込:132,000円】 | ||
| 共益費 | 0円[税別] (@0)【税込:0円】 | ||
| 賃料合計 | 120,000円[税別] (@16,529)【税込:132,000円】 | ||
| 敷金 | 0円 | 礼金 | 360,000円 |
| 沿線・最寄駅 | 「四ツ橋」駅 徒歩10分 - 四つ橋線 |
||
| 備考 |
スケルトン/業種相談/物販・無人販売・倉庫など最適/重飲食不可/火災保険・保証会社:加入要 |
||
| コメント |
【路面】大阪市西区新町2丁目 路面 スケルトン 物販・サービス最適 貸店舗!周辺、マンション多数の立地! ※詳細・内覧希望などは、お気軽にお問い合わせください。 |
||
| 掲載更新 | 2025/06※ | ||
※掲載更新月が古いものに関しては、既に募集が終了している可能性が高くなります。予めご了承ください。
最新の空室状況・詳細情報に関しては、お気軽にお問い合わせください。
| カテゴリー | 大阪市西区新町2丁目 路面 スケルトン 貸店舗 貸テナント | ||
|---|---|---|---|
